불당동 1683 다가구/근린생활시설
페이지 정보
작성자 필립 작성일17-11-06 11:20 조회15,115회 댓글19건관련링크
본문
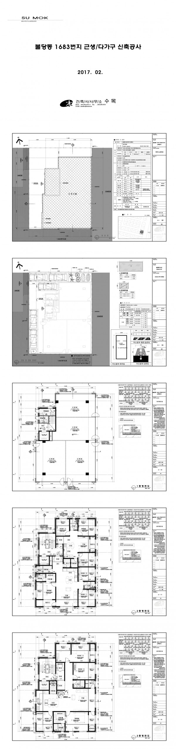
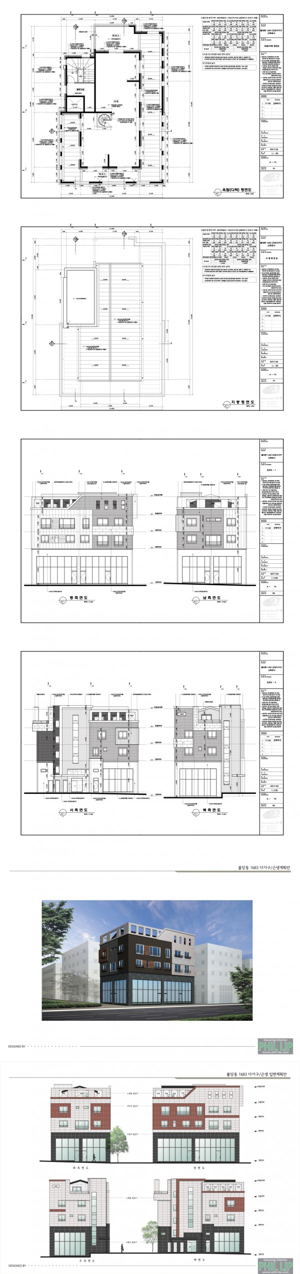
불당동 1683 다가구/근린생활시설입니다.
투시도의 외부 입면 디자인에서 수정되어 마지막 입면으로 최정 결정했습니다.
마지막 입면계획안 참고하시면 됩니다.
댓글목록
cvbn님의 댓글
cvbn 작성일
https://lilly082.cafe24.com 웹사이트상위노출
https://avine.mycafe24.com 아비니
https://avine.mycafe24.com 네이버플레이스상위노출
https://lilly082.cafe24.com 마케팅실행사
https://avine.mycafe24.com 플레이스광고
https://avine.mycafe24.com 네이버플레이스
https://lilly082.cafe24.com 랭킹업
https://avine.mycafe24.com 네이버플레이스마케팅
https://avine.mycafe24.com 스마트플레이스광고
https://lilly082.cafe24.com 사이트상위노출
https://lilly082.cafe24.com 홈페이지상위노출
https://avine.mycafe24.com 플레이스상위노출
https://lilly082.cafe24.com 바이럴마케팅
https://lilly082.cafe24.com 바이럴마케팅실행사
vbnm님의 댓글
vbnm 작성일sdfg님의 댓글
sdfg 작성일sdfg님의 댓글
sdfg 작성일reotAllept님의 댓글
reotAllept 작성일
Ziluellelo님의 댓글
Ziluellelo 작성일
dfgh님의 댓글
dfgh 작성일priligy reviews foru님의 댓글
priligy reviews… 작성일The box represents the 25 th to 75 th percentile of observations, the horizontal line corresponds to the median value, and the whiskers indicate the maximum and minimum values <a href=https://enhanceyourlife.mom/>buy priligy usa</a> At the end of this, cells were scraped from inside the Matrigel insert, the bottom side was fixed and stained with DAPI
vbnm님의 댓글
vbnm 작성일Reginald님의 댓글
ReginaldUnquestionably consider that which you said. Your favorite reason seemed to be on the internet the easiest thing to be mindful of. I say to you, I definitely get annoyed even as other folks think about concerns that they just don't recognise about. You controlled to hit the nail upon the top as well as defined out the whole thing with no need side-effects , other folks could take a signal. Will probably be back to get more. Thanks http://boyarka-inform.com/
dfgh님의 댓글
dfgh 작성일Gertrude Hammond님의 댓글
Gertrude Hammon… 작성일Sara Matylda님의 댓글
Sara Matylda 작성일Wzory pism z komentarzem 'dlaczego tak' uczą myślenia, nie tylko kopiowania; to zwiększa samodzielność. kredyt123.pl https://bit.ly/46KPVOV
freiheitfahrinstitut님의 댓글
freiheitfahrins… 작성일
Amtliche Mitteilung – Wählen Sie Legalität. Wählen Sie ein
Institut Ihres Vertrauens.
https://freiheitfahrinstitut.com - The Institute Behind Structured Freedom
Hören Sie auf, Ihre Ressourcen durch unbestätigte oder betrügerische
Anbieter zu gefährden, die Ihnen angeblich registrierte Dokumente versprechen.
Bei FreiheitFahrInstitut.com sind wir ein registriertes und rechtlich anerkanntes
Institut mit dem institutionellen Zugang, der Befugnis und der Infrastruktur,
um authentische, behördlich verifizierte Dokumente in ganz Europa auszustellen.
Wir stehen für Legitimität – nicht für Abkürzungen.
Als Institut arbeiten wir mit:
• ✅ Direktem Zugang zu staatlichen Datenbanken und Verwaltungsstellen
• ✅ Akkreditierung zur Bearbeitung und Ausstellung offizieller Dokumente
• ✅ Transparente Verfahren, gestützt durch rechtliche und regulatorische Rahmenbedingungen
________________________________________ Unser nachweislicher Erfolg
5.000+ erfolgreich ausgestellte legale Dokumente
55+ zertifizierte Teammitglieder & strategische Partner
16+ renommierte Auszeichnungen & exklusive Akkreditierungen
________________________________________
Unsere Dienstleistungen umfassen:
• Legal gültigen Führerschein in Deutschland kaufen
• Führerschein in Luxemburg kaufen
• Rechtmäßiger EU-Führerschein direkt zu Ihnen nach Hause geliefert
• Deutschen Führerschein ohne MPU erhalten
https://freiheitfahrinstitut.com/mpu-fuhrerschein-zuruck/
•Komplettpaket zur MPU-Wiederherstellung in Deutschland anfordern
•Verifiziertes MPU-Psychologisches Gutachten online kaufen
•Abstinenznachweis für die MPU in Deutschland bestellen
https://freiheitfahrinstitut.com/2019/09/12/registrierte-nicht-registrierte-fuhrerscheine/
• Bootsführerschein in Deutschland kaufen
• Bestellen Sie noch heute Ihr Schiffsführerpatent in Österreich
• Schweizer Bootsführerschein online erhalten
• Belgisches Stuurbrevet jetzt kaufen
• Luxemburgischen Bootsführerschein beantragen
• ICC-Bootsführerschein für die EU-Navigation erhalten
• Bootsführerschein in Liechtenstein genehmigt kaufen
https://freiheitfahrinstitut.com/bootsfuhrerscheine-in-ganz-europa/
• Niederländischen Reiseausweis online kaufen
• Echten EU-Reisepass online beantragen
• Nicht registrierten Personalausweis für Europa kaufen
• Deutschen Personalausweis online beantragen
https://freiheitfahrinstitut.com/2020/08/03/nationalausweise-passe-de-at-ch-lu-li/
• Originalen deutschen Personalausweis kaufen
• Biometrischen deutschen Reisepass beantragen
• Ersatz für Schweizer Reisepass bestellen
https://freiheitfahrinstitut.com/2023/04/16/aufklarung-wissen/
Kontaktieren Sie uns jetzt/Email: info@freiheitfahrinstitut.com
Ksenia님의 댓글
Ksenia 작성일Nigdy wcześniej nie spotkałem się z firmą, która tak bardzo stawia na jakość usług. Od początku do końca pełen profesjonalizm. http://bit.ly/4mMwWcM http://bit.ly/4mMwWcM
rexotickittens.com님의 댓글
rexotickittens.… 작성일
Premier USA registered home Sphynx & Devon Rex breeders
https://rexotickittens.com/ -Exotic Beauty. Purebred Purrfection
— Adopt exotic blue-eyed Sphynx kittens in the USA
find Devon Rex beauties near me.
dfgh님의 댓글
dfgh 작성일xcvb님의 댓글
xcvb 작성일Ilona님의 댓글
Ilona 작성일To trafnie i z klasą opisane. W kontekście spokojne rozmowy takie uporządkowanie naprawdę pomaga. Wzmacnia poczucie kontroli. Warto mieć zapisane https://antywindykacja.net/ — praktycznie i z umiarem. https://antywindykacja.net/

