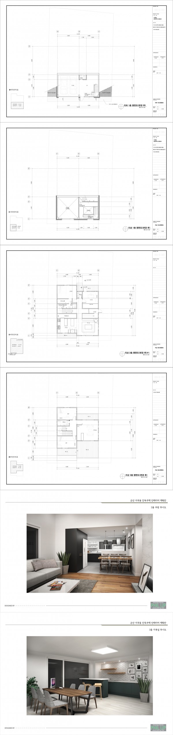
군산 지곡동 단독주택 인테리어 계획안 페이지 정보 작성자 필립 작성일17-11-06 11:14 조회3,496회 댓글4건 관련링크 이전글 다음글 목록 답변 본문 군산 지곡동 단독주택 인테리어 계획안입니다.시공까지 연결된 프로젝트는 아니였지만인테리어 계획 과정을 보여드리고 싶어서 자료 올립니다.감사합니다. 댓글목록 cvbn님의 댓글 cvbn 작성일 24-12-17 12:31 https://marigoldps.kr/ https://marigoldps.kr/ cvbn님의 댓글 cvbn 작성일 24-12-29 16:45 https://wonjoohanji.co.kr/ https://wonjoohanji.co.kr/ sdfg님의 댓글 sdfg 작성일 24-12-30 13:11 https://gongdeokparkxi.co.kr/ https://gongdeokparkxi.co.kr/ cvbn님의 댓글 cvbn 작성일 24-12-31 13:59 https://espsolution.co.kr/ https://espsolution.co.kr/ 이전글 다음글 목록 답변